PROJECT
PUBLICITY
ABOUT
CONTACT
SHOTENKENCHIKU
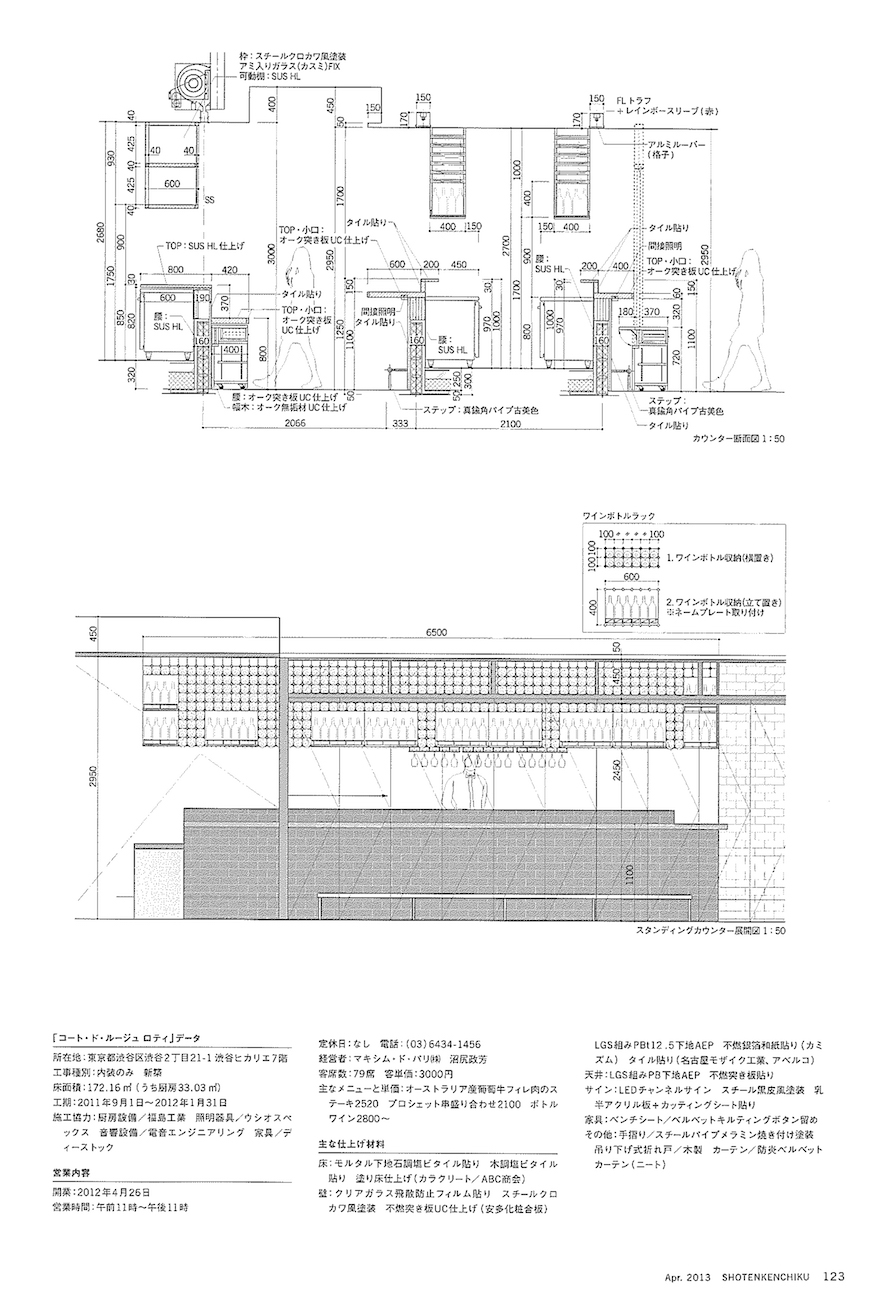
COTE DE ROUGE ROTI
Shibuya/Tokyo/JAPAN
PUBLICITY ALL